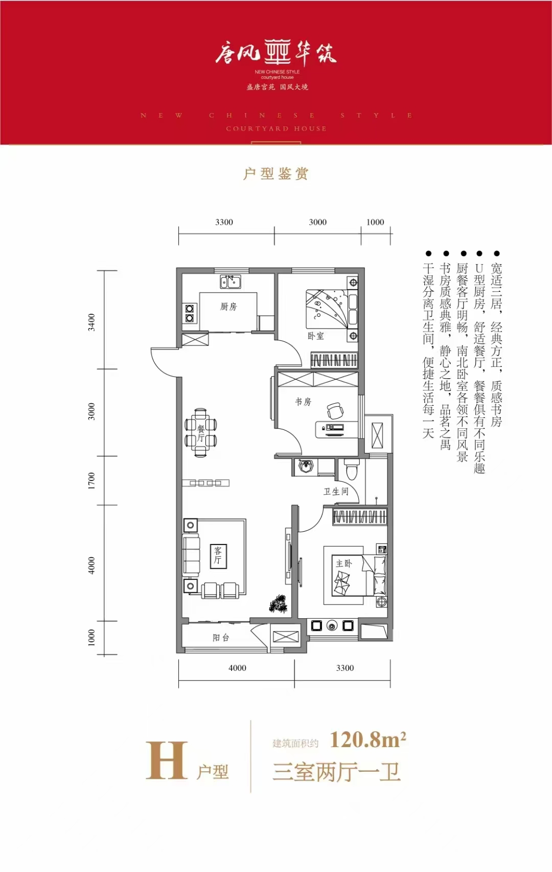
唐风华筑毛坯房17楼120平
编号:18608 (点击:1321)
唐风华筑毛坯现房17楼120平
64.5首付11万起,楼间距百米,彩光好,3室1厅1卫,
销售热线:18647566978







|
区域:[科尔沁区]
类别:[房产交易]
是否中介:
否
装修情况: 家具情况: 楼层: 楼 |
| 联系人 | 18647566978 |
| 联系电话 | 18647566978 |
| 地点 | 科尔沁区 |
| 网站 | 未填 |
| 未填 | |
| 未填 | |
| 发布时间 | 2026/1/3 13:23:18 |
| 有效期 | 52天 |